高崎第一生命ビルディング 11F
事務所 315,315円
管理会社指定の保証会社との契約(別途保証料発生)により敷金0円キャンペーン実施中!
物件情報
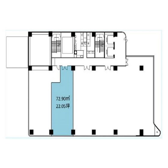
| 事務所【72.90㎡】 | |||||
| 構造 | RC 11階/11階建 | 築年月 | 築年月 1990年08月(35年9ヶ月) | ||
| 最寄駅 |
JR高崎線 高崎駅 徒歩5分 |
入居可能日 | 即入居可 | ||
| 家賃 | 315,315円 | 共益費 | |||
| 駐車場 | なし | 駐車場料金(月額) | |||
| その他月々費用 | |||||
| 礼金 | 敷金 | 仲介手数料 | 315,315円 | ||
| 火災保険 | 要加入 | 保証会社 | 要加入 | 取引態様 | 媒介 |
| その他一時金 | |||||
| 設備 | トイレ | ||||
| こだわり | |||||
| 備考 | 駐車場要空き確認、借家人賠償責任保険要加入、天井高2,550mm、OA床50mm、光ケーブルMDFまで引込済 | ||||
| 周辺施設 | 幼保連携型認定こども園慈光こども 352m、高崎市立南小学校 220m、高崎市立高松中学校 990m、群馬県立高崎工業高校 2322m、高崎市役所 575m、高崎駅前通郵便局 90m、高崎市立中央図書館 872m、高崎警察署 2075m | ||||






